Skip to content
Article No. 11029

Trash boxes

for NW 200, with silt bucket made of galvanised steel, with ductile iron cover, SW 198/10 mm in FIBRETEC design, black, 4-fold bolting, 0.5 m

Delivery time on request

Questions?

Our experienced planning team will be happy to help you.

Get in touch

Product image

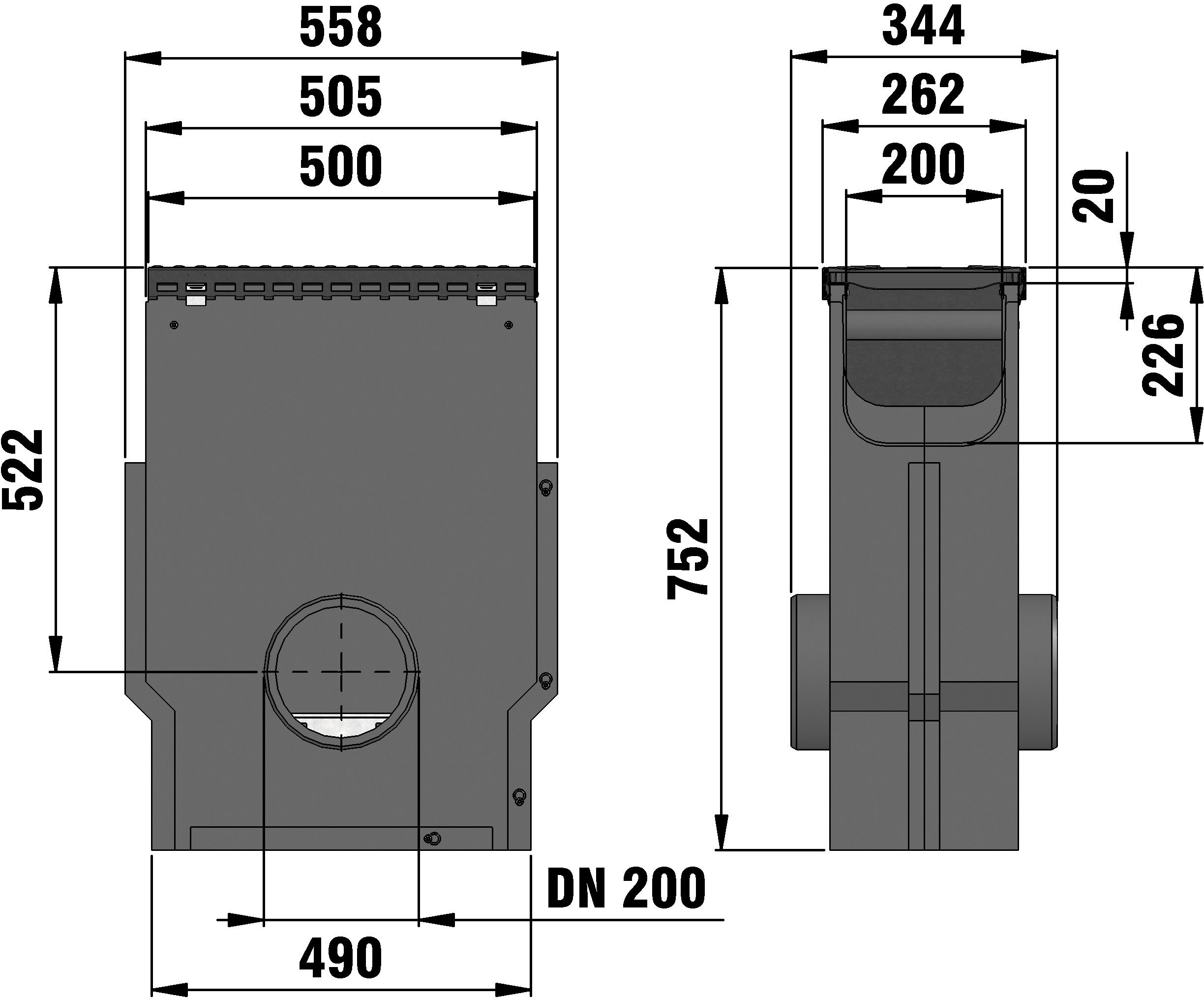
Technical drawing

Drawing (CAD)

Top view

Technical information and metrics

Article No.
11029
Length
500 mm
Width
262 mm
Height
752 mm
Einlegetiefe
20 mm
Weight
34.73 kg
Material
Ductile iron GJS 500-7, KTL coated steel, recycled polyolefin, Steel black galvanised
Intake cross-section
572.0 cm²/m
Nominal size
200
Material cover
Ductile iron GJS 500-7
Regulations
EN 1433, DIN 19580
Sales text
Sump unit with edge frames made of KTL-coated steel, with ductile iron cover SW 198/10 mm in FIBRETEC design, black, cl. D 400, with silt bucket made of galvanised steel, RECYFIX NC 200, 0.5 m
Product description
RECYFIX NC 200 - Sump unit made of recycled polyolefin, with edge frames made of KTL-coated steel, on both sides preformed pipe connection element DN/OD 200, with removable silt bucket made of galvanised steel, suitable for both-sided connection of channel types RECYFIX NC 200, with ductile iron cover slot width 198/10 mm in FIBRETEC design, made of spheroidal ductile iron EN-GJS-500-7, black, with longitudinal slide protection, with 4-fold bolting, load class A 15 - D 400 according to EN 1433, LxWxH 500x262x752 mm, item no. 11029
Packaging unit
4