Skip to content
Cikkszám 88105

AQUAFIX - K2BPPP Leválasztó berendezés koaleszcens szűrővel, dupla megkerülő vezetékkel

KC2BPPP 30

Kérdése van?

Kollégáink készséggel állnak az Ön rendelkezésére

Kapcsolat

Termék kép

Beépítési rajz

AQUAFIX - Beépítési útmutatók

AQUAFIX - Beépítési útmutatók

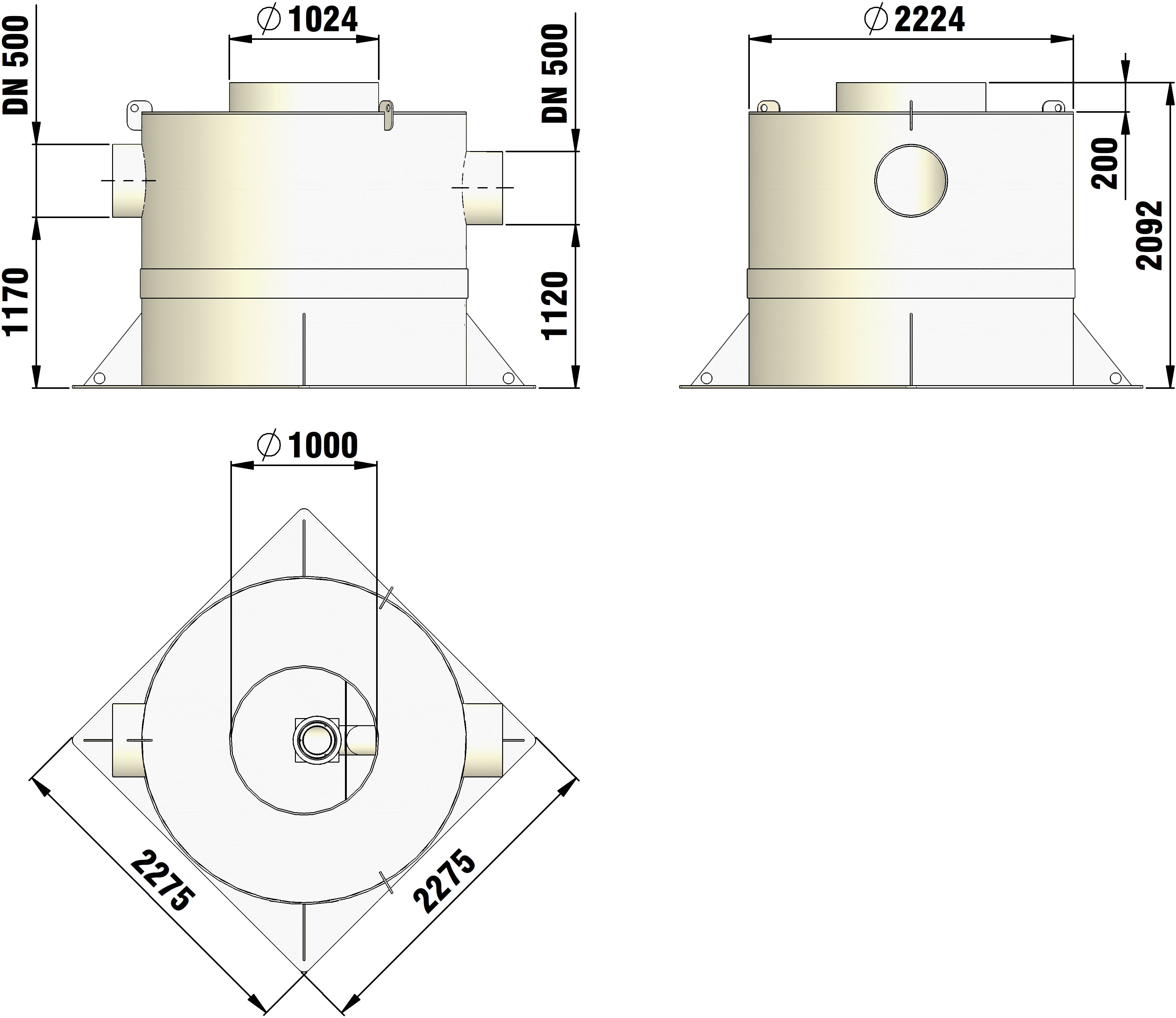
Műszaki rajz

Rajzok (CAD)

Műszaki információk és mérőszámok

Cikkszám
88105
Hossz
2275 mm
Szélesség
2275 mm
Külső átmérő
2224 mm
Magasság
2092 mm
Tömeg
-
Anyag
AQUAFIX koaleszcensanyag, Polypropilén
Névleges kapacitás
30,00 l/s
Teljes kapacitás megkerülő vezetékkel
300.0 l/s
Iszapfogó kapacitás
-
Leválasztó kapacitása
3984 l
DN bemenet/kimenet
500 mm
HE Magassági bemeneti nyílás
1170 mm
HA Magassági kimeneti nyílás
1120 mm
DNE 1-es akna
1000 mm
Vonatkozó szabványok
EN 858 conditionally
Kiíró szöveg
AQUAFIX Kompakt Koaleszcens Olajleválasztó Berendezés dupla megkerülővezetékkel KC2BPPP 30 polypropilénből
Termék leírás
AQUAFIX Kompakt Koaleszcens Olajleválasztó Berendezés dupla megkerülővezetékkel KC2BPPP 30 polypropilénből
Csomagolási egység (db/raklap)
-