Skip to content
Cikkszám 88114

AQUAFIX - SKBPPP Leválasztó berendezés koaleszcens szűrővel, iszapfogóval és megkerülő vezetékkel

SKCBPPP 15/1500

Kérdése van?

Kollégáink készséggel állnak az Ön rendelkezésére

Kapcsolat

Termék kép

Beépítési rajz

AQUAFIX - Beépítési útmutatók

AQUAFIX - Beépítési útmutatók

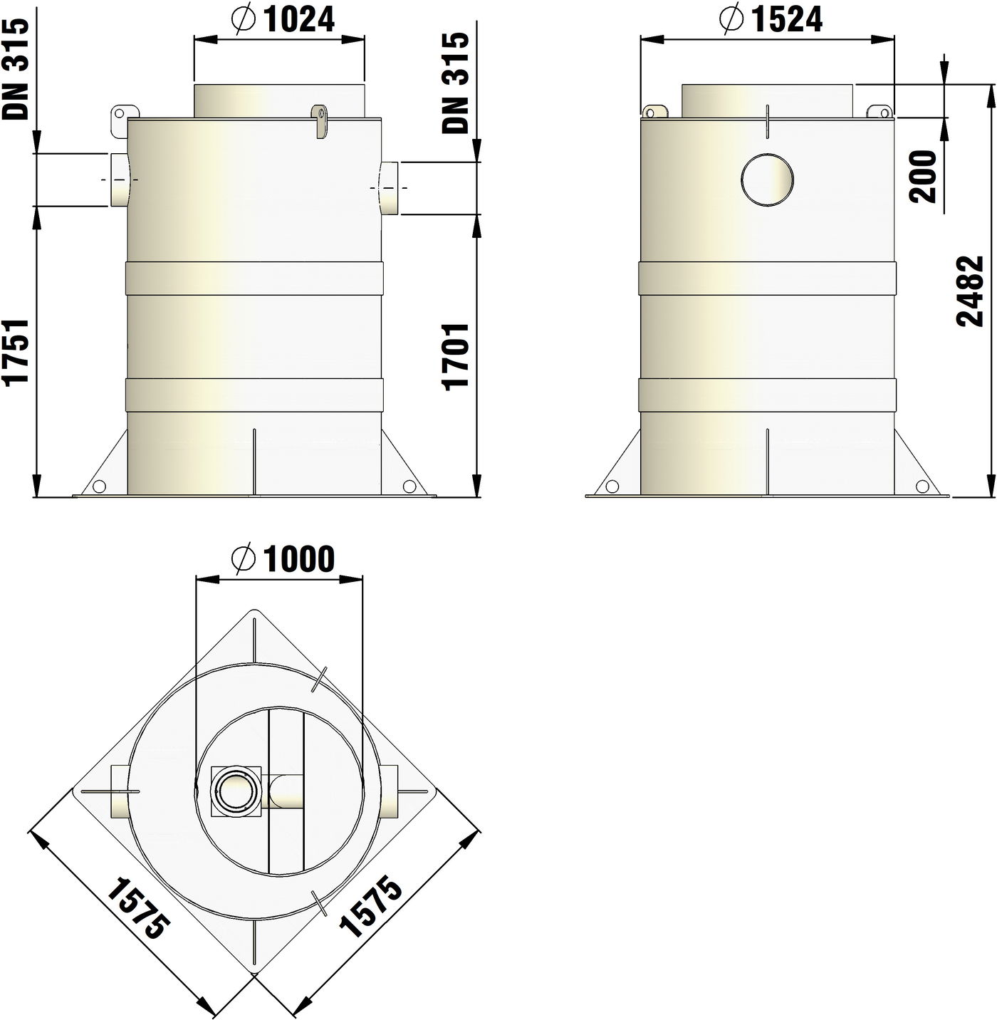
Műszaki rajz

Rajzok (CAD)

Műszaki információk és mérőszámok

Cikkszám
88114
Hossz
1575 mm
Szélesség
1575 mm
Külső átmérő
1224 mm
Magasság
2482 mm
Tömeg
-
Anyag
AQUAFIX koaleszcensanyag, Polypropilén
Névleges kapacitás
15,00 l/s
Teljes kapacitás megkerülő vezetékkel
75.0 l/s
Iszapfogó kapacitás
1500 l
Leválasztó kapacitása
1064 l
DN bemenet/kimenet
315 mm
HE Magassági bemeneti nyílás
1751 mm
HA Magassági kimeneti nyílás
1701 mm
DNE 1-es akna
1000 mm
Vonatkozó szabványok
EN 858 conditionally
Kiíró szöveg
AQUAFIX Kompakt Koaleszcens Iszap- és Olajleválasztó Berendezés megkerülővezetékkel SKCBPPP 15/1500 polypropilénből
Termék leírás
AQUAFIX Kompakt Koaleszcens Iszap- és Olajleválasztó Berendezés megkerülővezetékkel SKCBPPP 15/1500 polypropilénből
Csomagolási egység (db/raklap)
-