Přeskočit na obsah
Obj. číslo produktu 7150

SPORTFIX vodní příkop

Vodní příkop s překážkou a servisní šachtou, hliník

Fragen?

Unser erfahrenes Planungsteam hilft Ihnen gerne.

Obrázek produktu

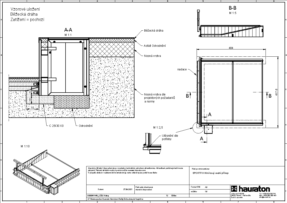
Technický výkres

Výkres (CAD)

Technické informace a rozměry

Obj. číslo produktu
7150
Délka
3850 mm
Šířka
4440 mm
Výška
678 mm
Hmotnost
271.80 kg
Materiál
Hliník
Nominální velikost
-
Nabídkový text
SPORTFIX SADA PRO VODNÍ PŘÍKOP, vodní příkop s překážkou a servisní šachtou, hliníkový
Detailní popis produktu
SPORTFIX SADA PRO VODNÍ PŘÍKOP - vodní příkop s překážkou a servisní šachtou, ze tří prefabrikovaných částí (hliník), horní okraje opatřeny bílými Soft profily, pro všechna sportovní zařízení dle IAAF, odtok DN 70 (včetně plastové nátrubku), obj.č. 7150
Množství v balení / na paletě
1

Vzorové uložení

Běžecká dráha třída Pochozí,