Prejsť na obsah
Artiklové číslo 7150

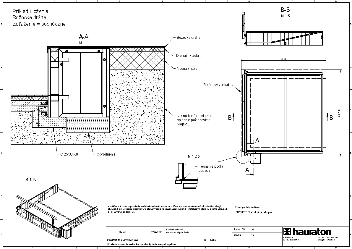
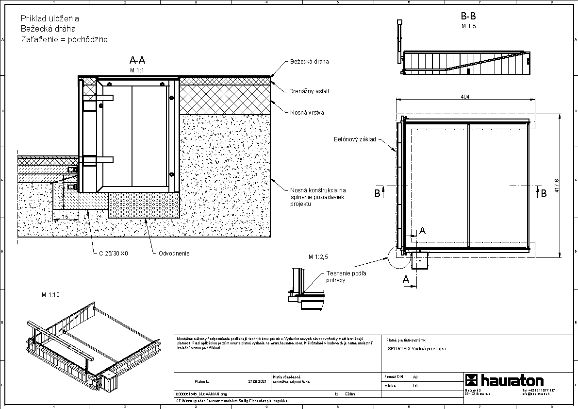
SPORTFIX Vodná priekopa

Vodná priekopa, hliníková, so šachtou, vrátane prekážky, s montážnym materiálom

Otázky?

Náš skúsený tím plánovačov vám rád pomôže.

Spojte sa s nami

Obrázok produktu

Technický výkres

Výkresy (CAD)

Technické informácie a ukazovatele

Artiklové číslo
7150
Dĺžka
3850 mm
Šírka
4440 mm
Výška
678 mm
Hmotnosť
271.80 kg
Materiál
Hliník
Menovitý priemer
-
Predajný text
SPORTFIX Vodná priekopa, hliníková, so šachtou, vrátane prekážky
Popis produktu
SPORTFIX Vodná priekopa - hliníková, so šachtou, vrátane prekážky a montážneho materiálu, artikel 7150
Balná jednotka
1

Príklad montáže

trieda pochôdzny,