Skip to content
Broj artikla 10166

RECYFIX PRO 200, klasa C 250

Tip 010 s FIBRETEC rešetkom , SW 200/10 mm, u crnoj boji, zaključana, 1,0 m

Fragen?

Unser erfahrenes Planungsteam hilft Ihnen gerne.

Slika proizvoda

Tehnički crtež

Crtež (CAD)

Pogled odozgo

Tehnički list

Tehničke informacije i metrika

Broj artikla
10166
Dužina
1000 mm
Širina
262 mm
Visina
200 mm
Dubina umetanja
20 mm
Težina
8.66 kg
Materijala
Čelik crno pocinkovani, Elektrocinkovani čelik, modifikovani Polipropilen, ojačani Poliamid
Ulazni presek
656.0 cm²/m
Nazivni prečnik
200
Unutrašnji poprečni presek kanala
294 cm²
Tip prema DIN EN 1433
M
Kanali materijal
modifikovani Polipropilen
Materijalni rešetke
ojačani Poliamid
Pravila i propisi
EN 1433, DIN 51130, AS 4586, ,
Sales tekt
RECYFIX PRO 200 Kanal tip 010 sa integrisanim rubom, s FIBRETEC Design šlic rešetkom SW 200/10 mm, crna, kl. C 250, zaključana, 1 m
Opis proizvoda
RECYFIX PRO 200 tip 010 - Telo kanala od recikliranog polipropilena, sa integrisanim rubom, sa mogućnošću vertikalnog priključka DN/ OD 110/160, s FIBRETEC dizajnom prorezne rešetke SW 200/10 mm, napravljene od poliamida ojačanog vlaknima, crne boje, sa uzdužnom zaštitom od klizanja i zaključavanjem, klasa opterećenja A 15 - C 250 prema EN 1433, DxŠxV 1000x262x200 mm, artikl br. 10166
Jedinica pakovanja
20

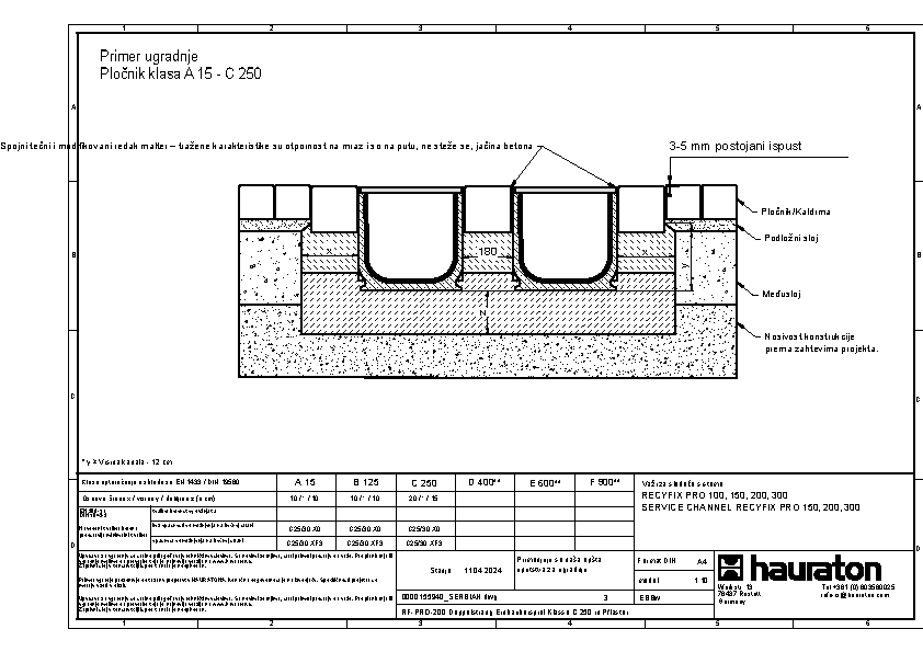
Primeri ugradnje

Beton klasa A 15 - C 250,

Asfalt klasa A 15 - B 125,

Popločanje klasa A 15 - B 125,

Popločanje klasa A 15 - B 125,

Popločanje klasa A 15 - C 250,

Popločanje klasa C 250,

Beton klasa C 250,

Asfalt klasa C 250,

Popločanje klasa C 250,

Asfalt klasa A 15 - B 125,

Popločanje klasa A 15 - C 250,

Asfalt klasa C 250,

Beton klasa C 250,

Uputstva za ugradnju