Skip to content
Article No. 33266

Trash boxes

for NW 400, for Type 01 H, 2-part, ith edge frames made of KTL-coated ductile iron and silt bucket made of galvanised steel, 1.0 m

Delivery time on request

Questions?

Our experienced planning team will be happy to help you.

Get in touch

Product image

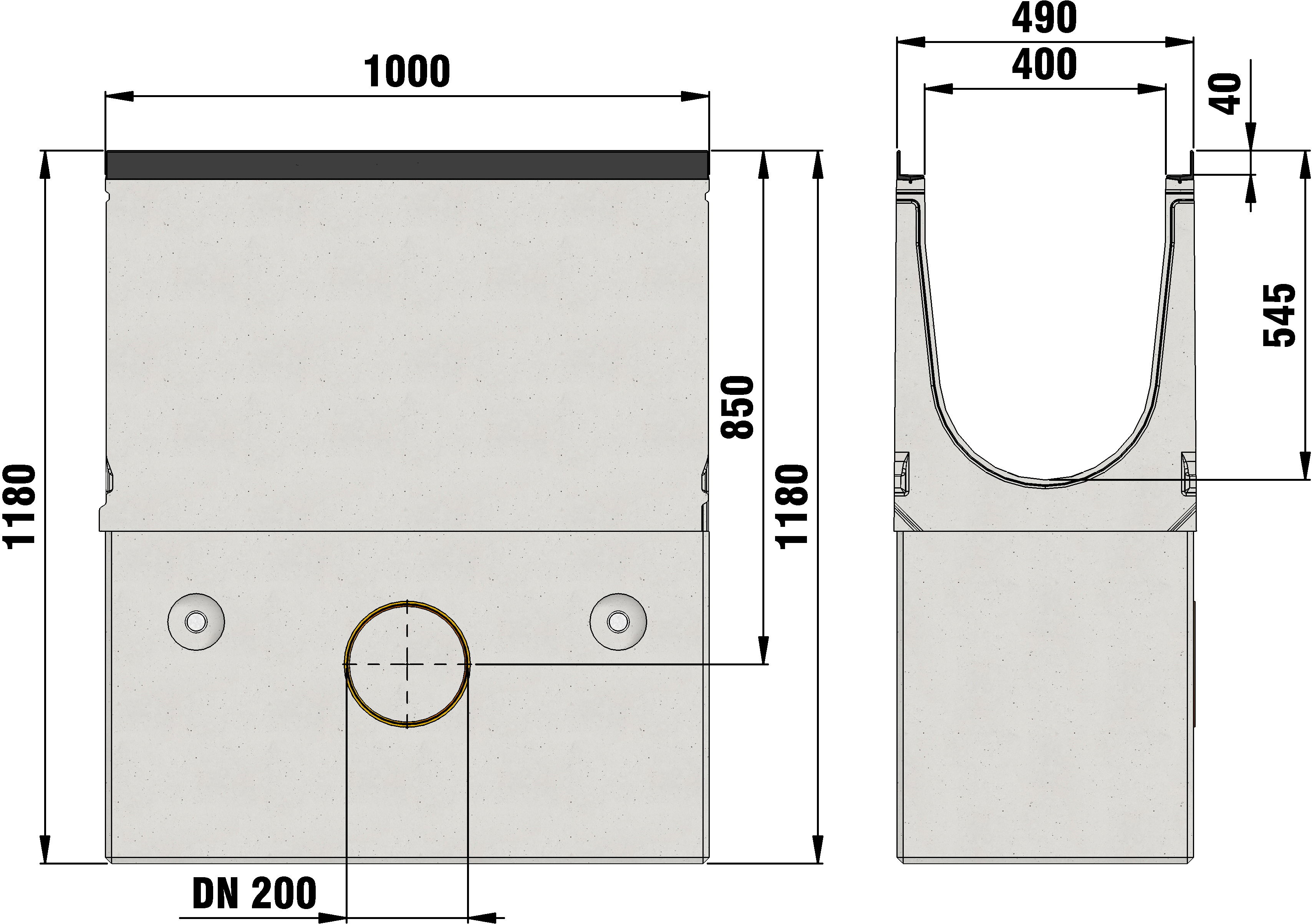
Technical drawing

Drawing (CAD)

Technical information and metrics

Article No.
33266
Length
1000 mm
Width
490 mm
Height
1180 mm
Weight
860.24 kg
Material
Ductile iron GJS 500-7 with KTL-coating, fibre-reinforced concrete
Nominal size
400
Regulations
DIN 19580
Sales text
Sump unit, 2-part, with edge frames made of KTL-coated ductile iron, with silt bucket made of galvanised steel, FASERFIX SUPER 400 type 01H, 1 m
Product description
FASERFIX SUPER 400 type 01H -Sump unit, 2-part, made of fibre-reinforced concrete, load class A 15 - F 900 according to EN 1433, CE compliant, with edge frame made of KTL-coated steel, 8-fold bolting per meter, one-sided connection possibility (on the side) with integrated PVC-U socket DN/OD 200, with removable silt bucket made of galvanised steel, suitable for both-sided connection of FASERFIX SUPER 400 type 01H, LxWxH 1000x490x1090 mm, item no. 33266
Packaging unit
1