Skip to content
Article No. 10487

Trash boxes

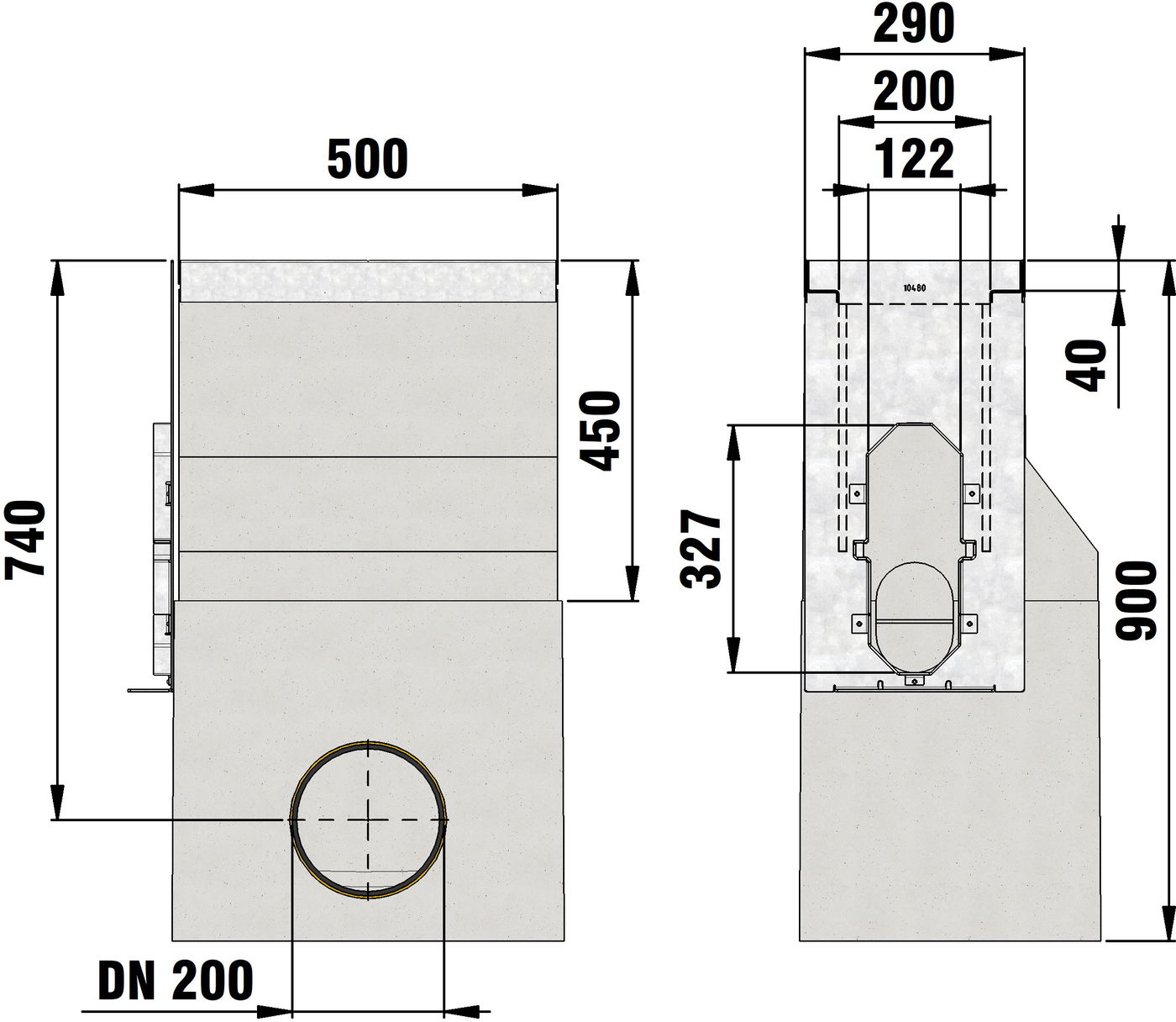
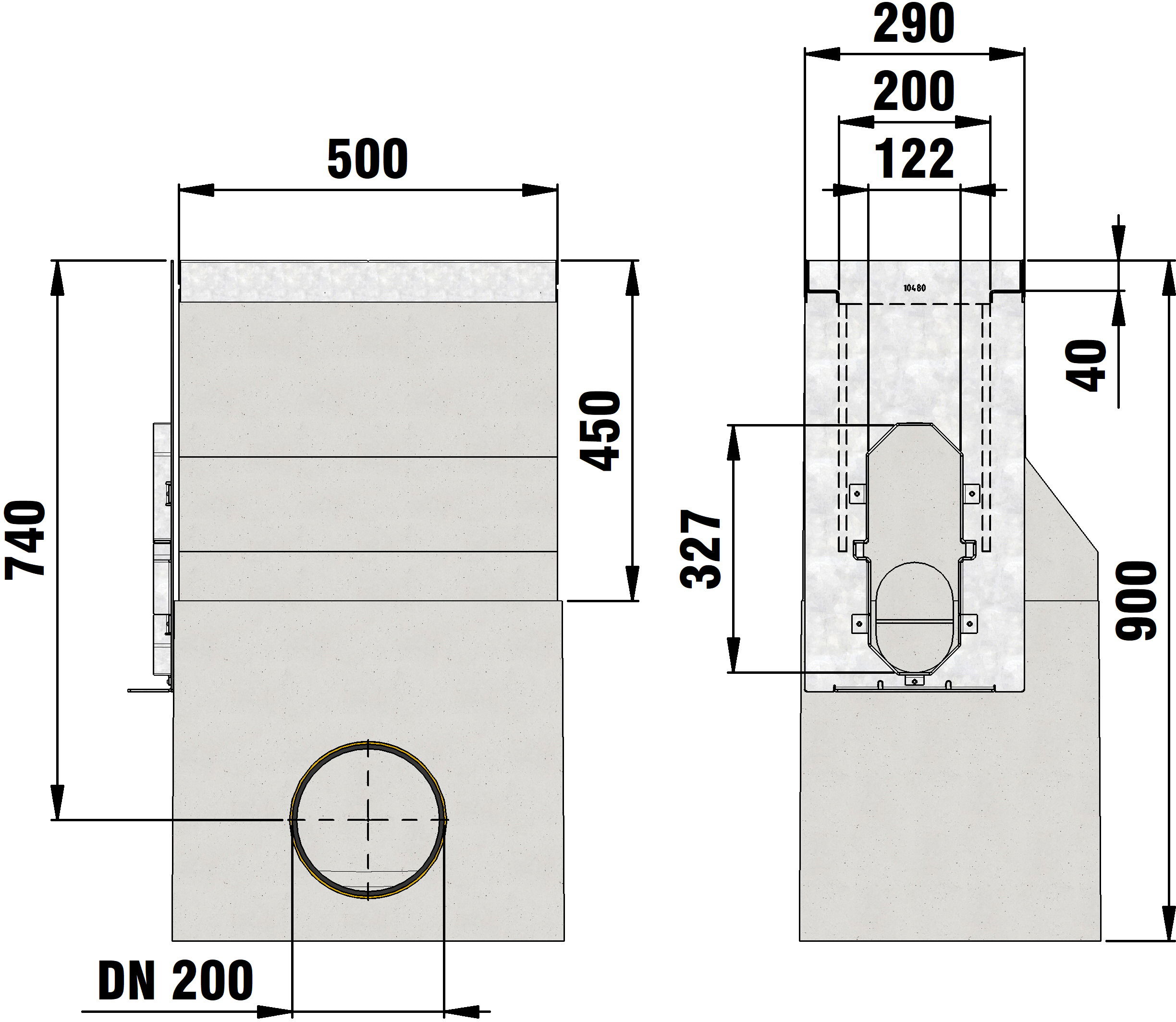
for NW 200, 2-part, for system size 2200, with edge frames made of galvanised steel, with PVC-U socket DN/OD 200, 0.5 m

Delivery time on request

Questions?

Our experienced planning team will be happy to help you.

Get in touch

Product image

Technical drawing

Drawing (CAD)

Technical information and metrics

Article No.
10487
Length
500 mm
Width
290 mm
Height
900 mm
Weight
201.45 kg
Material
fibre-reinforced concrete, Steel with zinc-magnesium coating, strip galvanized steel
Nominal size
200, 2000
Sales text
Sump unit with edge frames made of galvanised steel, 2-part, with PVC-U socket DN/OD 200, for connection of RECYFIX HICAP 2200, with connecting plate, galvanised, RECYFIX HICAP 2200, 0.5 m
Product description
RECYFIX HICAP 2200 - Sump unit, 2-part, made of fibre-reinforced concrete, load class A 15 - F 900 according to EN 1433, CE compliant, with edge frame made of galvanised steel, with boltless quick-locking system SIDE-LOCK, 4-fold locking, one-sided connection possibility (on the side) with integrated PVC-U socket DN/OD 200, with connecting plate, galvanised, for connection of RECYFIX HICAP 2200, LxWxH 500x290x900 mm, item no. 10487
Packaging unit
-