Skip to content
Артикул №. 41077

RECYFIX PLUS 150, клас B 125

Тип 01 с мрежовидна решетка MW 30/10, поцинкована, заключена

Въпроси?

Нашият опитен екип по планиране с удоволствие ще ви помогне.

Свържете се с нас

Представяне на продукта

Изглед отгоре

Технически чертеж

Чертежи (CAD)

Информационен лист

Техническа информация и показатели

Артикул №.
41077
Дължина
1000 mm
Широчина
202 mm
Височина
193 mm
Einlegetiefe
2 mm
Тегло
9.85 kg
Материал
горещо поцинкована стомана, Поцинкована лентова стомана, Поцинкована стомана, рециклиран, модифициран полипропилен
Входящо напречно сечение
1075.0 cm²/m
Номинална широчина
150
Чисто напречно сечение на улея
225 cm²
Тип съгласно DIN EN 1433
M
Материал на отводниелния улей
рециклиран, модифициран полипропилен
Материал на ъгловия кант
Поцинкована лентова стомана
Материал на решетката
горещо поцинкована стомана
Правила и разпоредби
EN 1433, ,
Текст за разпространение
RECYFIX Plus 150 улей Тип 01
Описание на продукта
RECYFIX Plus 150, Тип 01 - улеи от РЕ-РР полиетилен полипропилен, с вграден метален профил за решетката, с мрежовидна решетка, отвор 30/10, поцинкована и със заключване, клас натоварване A 15 - B 125 съгласно EN 1433, дълж./шир./вис. 1000x210x192 мм, Арт.№ 41077
Опаковъчна единица
25

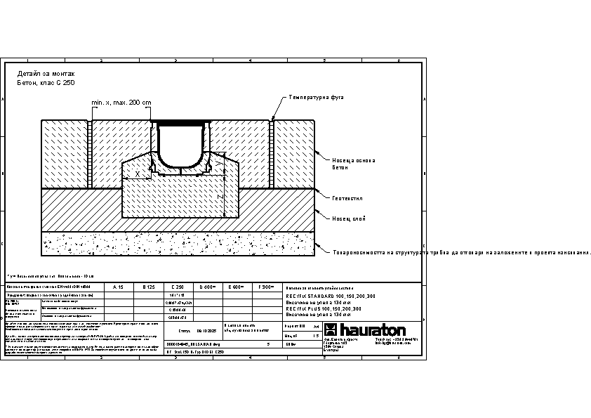
Детайл за монтаж

Уни паваж клас B 125,

Циментова замазка клас B 125 - C 250,

Уни паваж клас C 250,

Асфалт клас A 15 - B 125,

Асфалт клас C 250,

Уни паваж клас A 15 - B 125,

Бетон клас C 250,

Уни паваж клас C 250,

Инструкции за монтаж